COMMENT CHOISIR ? L, V OU U
LE "L" UNE MAISON FONCTIONNELLE

Que ce soit de plain-pied ou à étage, le plan de maison en L s’adapte à tout type de terrain !
Mais quel est l'intérêt de ce modèle ?
- L'orientation des pièces annexes (type garage, buanderie etc) au Nord
- Les pièces de vie orientées au Sud, pour bénéficier d’un maximum de luminosité
- Permet aussi d’éviter le vis-à-vis
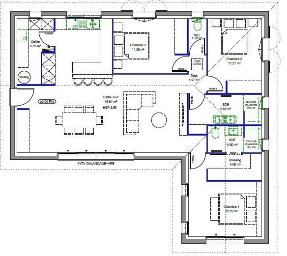
Chez Southwest Villas, vous pouvez retrouver des maisons en L, comme le modèle Anis.
Ce modèle contemporain vous offre la possibilité de mettre 3 ou 4 chambres.
LE "V" UNE MAISON SPACIEUSE

Le plan de maison en V s’adapte aux grands terrains, car le modèle possède de grand volume !
Mais quel est l'intérêt de ce modèle ?
- La pièce de vie se situe au coeur de la maison
- Protege du vent et du vis-à-vis
- Les chambres des parents et enfants se trouvent souvent aux extrémités, ce qui permet d’avoir plus d’intimité.
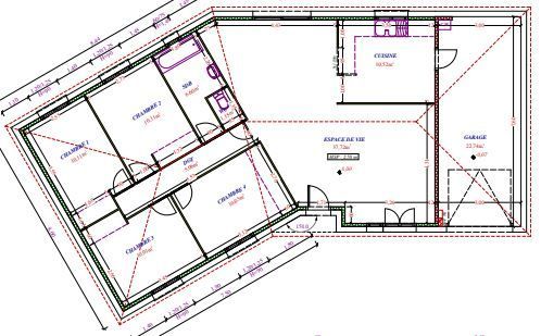
Le modèle Cerise propose un plan de maison en V.
Ce modèle de plain-pied abrite un espace de vie étendu.
La maison est ouverte sur la terrasse, pour profiter de l’extérieur toute l’année.
LE "U" UNE MAISON INTIMISTE

Vous cherchez un modèle moderne se rapprochant des maisons d’architecte ?
Mais quel est l'inérêt de ce modèle ?
- De beaux volumes
- Un aménagement original et très fonctionnel,
- Possibilité de créer un grand patio, pour plus d’intimité et de tranquillité.
En forme de U, cette belle maison est très lumineuse et possède un grand espace de vie.

